DNYF1.5
BOEEP
DNYF
製品導入
ブーツ高デューティ型ベルトフィルタースラッジ脱水装置は、主に、厚肉プール(A / O残留スラッジなど)に集中しないスラッジを処理するために使用されます。それは2つの機能を持っています:集中と脱水。伝統的な重力ベルトフィルタプレスと比較して、この装置は、複数のプレスロールおよび高圧ロール構造の望みによって、より大きな治療能力およびより低いスラッジケーキの含水量の要求を満たすことができる。その間、外側のドア構造はシステムを完全に閉じて保守することが好都合にしています。
構造
ブイス高デューティ型ベルトフィルタースラッジ脱水装置はスムーズに実行され、通常は衝撃、振動、異常音が出ません。すべての部品を修飾することを確認した後、組み立てを実行できます。 HAMED HARDHALを調整するために 便利には、フレームが基礎上に固定されています と アンカーボルト、および調整装置を装備しています。
脱水システムでは泥水入口、投与、混合、反応が全て実現されており、脱水と泥ケーキの出力のパイプライン動作が層流状態で進行している。
装置を安定的かつ確実に動作させるために、スラッジ脱水ベルトプレス機の設計および製造は、高温および100%の湿度で過酷な作業環境に適応するべきである。

作業原理
凝集スラッジは、分配機構を介して濃度重力脱水領域に均等に送られる。この地域では、長い水平方向の動きと狭い角度があります。スラッジはフィルタベルトに沿って移動する。重力下で、水とフロックを分離し、ほとんどの水を濾過する。スラッジは流動性から外れ、スクレーパを通してフィルタプレス部にスクラップされます。
厚いスラッジがくさび形の脱水帯に入ると、楔形のゾーン内のスラリーがさらに平滑化されて均一にされ、穏やかな押出がかかる。上下のフィルタベルトによって形成された楔形の空間が小さくなり、最後に2つのフィルタベルトが閉じられ、フィルタベルトの中央に挟まれたスラリーの絞り力が徐々に増加し、水が増加する。継続的にフィルタリングされます。このとき、スラリーは流動性を失い、次のステップをプレス脱水領域に準備する。
脱水ゾーン内の押圧ローラは、大きな直径から小さい直径から順に配置され、材料への押圧力が徐々に増加する。 汚泥の脱水は粉砕された後に完了した後、いくつかのS-列のスクイーズロールによってケーキを驚かせそして剪断することによって完了した、ほとんどの場合は除去することができます。 フィルタベルトが除荷機構を通過すると、泥ケーキはスクレーパによってフィルタベルトから掻き取りされる。上部および下部フィルタベルトを洗浄してから重力脱水領域に戻して次のスラッジ脱水サイクルを完了する。
技術的な利点
フィルタベルト補正装置の動作は柔軟で信頼性がある。フィルタベルトが中心15mmからずれたとき(実際の動作に応じて動作を調整することができる)、フィルタテープ補正装置は自動的に機能し、実際の操作に応じて調整可能な操作においてストレーナが30mm以下である。調子。
脱水装置は洗浄装置を有し、フラッシング装置はスプレーパイプとノズルとからなる。スプレー範囲はフィルタベルトの幅を覆い、各ノズルを交換することができる。フラッシング装置は良好なシーリング性を有し、水と湿った泥ケーキを飛散させることはできません。簡単なメンテナンスや清掃のための逆洗フィルターを装備しています。
フィルタベルトは、高強度、耐食性、良好な透過性、遮断が容易な特性、滑らかな表面および高い固体回収率の特性を有するポリエステルモノフィラメントで作られている。
デーダレーターの空の負荷テストは、6.16のJB / T8102-1999の要件を満たし、負荷テストはJB / T8102-1999の要件を満たしています。
フィルタベルトの速度はスムーズに調整することができます。
技術的なパラメータ
| フィルターベルト幅(mm):1500 | 容量(M3 / HR):15~30 |
| D.乾燥スラッジ(KG / H):240~350 | セクションのフィルタベルト速度(m /分):1.0~6.5 |
| 厚さの断面フィルターベルト速度(m /分):4~21 | ベルト駆動モーター電源(kw):1.1 |
| フィルターベルト増粘モーター電源(KW):0.75 | ミキサータンクブレンドモーターパワー(KW):0.75 |
| モーター保護グレード: IP55 | モーター絶縁体レベル: F |
| 力: 380V、50Hz、3フレーズ | フラッシング圧力(MPa)/品質 (M3 / HR):0.5MPa /≦15m3 / h |
| 重量(kg):4200 | 給水含有量(%): 98~99.5 |
| スラッジケーキ水分含有量(%): 75~85 | スラッジケーキ水分含有量(%): 75~85 |
応用
ブーツ高デューティ型ベルトフィルタースラッジ脱水装置 市政廃水、食品、飲み物、屠殺、繁殖、印刷、石油化学工学、製紙、泉山、医薬品の脱水スラッジに広く使用できます。特に都市下水では広く使われています。
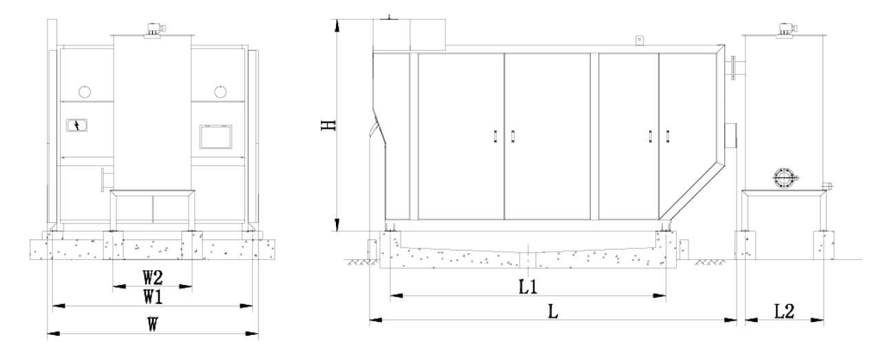
仕様&モデルデータ
製品詳細
オブジェクトサイト
製品導入
ブーツ高デューティ型ベルトフィルタースラッジ脱水装置は、主に、厚肉プール(A / O残留スラッジなど)に集中しないスラッジを処理するために使用されます。それは2つの機能を持っています:集中と脱水。伝統的な重力ベルトフィルタプレスと比較して、この装置は、複数のプレスロールおよび高圧ロール構造の望みによって、より大きな治療能力およびより低いスラッジケーキの含水量の要求を満たすことができる。その間、外側のドア構造はシステムを完全に閉じて保守することが好都合にしています。
構造
ブイス高デューティ型ベルトフィルタースラッジ脱水装置はスムーズに実行され、通常は衝撃、振動、異常音が出ません。すべての部品を修飾することを確認した後、組み立てを実行できます。 HAMED HARDHALを調整するために 便利には、フレームが基礎上に固定されています と アンカーボルト、および調整装置を装備しています。
脱水システムでは泥水入口、投与、混合、反応が全て実現されており、脱水と泥ケーキの出力のパイプライン動作が層流状態で進行している。
装置を安定的かつ確実に動作させるために、スラッジ脱水ベルトプレス機の設計および製造は、高温および100%の湿度で過酷な作業環境に適応するべきである。

作業原理
凝集スラッジは、分配機構を介して濃度重力脱水領域に均等に送られる。この地域では、長い水平方向の動きと狭い角度があります。スラッジはフィルタベルトに沿って移動する。重力下で、水とフロックを分離し、ほとんどの水を濾過する。スラッジは流動性から外れ、スクレーパを通してフィルタプレス部にスクラップされます。
厚いスラッジがくさび形の脱水帯に入ると、楔形のゾーン内のスラリーがさらに平滑化されて均一にされ、穏やかな押出がかかる。上下のフィルタベルトによって形成された楔形の空間が小さくなり、最後に2つのフィルタベルトが閉じられ、フィルタベルトの中央に挟まれたスラリーの絞り力が徐々に増加し、水が増加する。継続的にフィルタリングされます。このとき、スラリーは流動性を失い、次のステップをプレス脱水領域に準備する。
脱水ゾーン内の押圧ローラは、大きな直径から小さい直径から順に配置され、材料への押圧力が徐々に増加する。 汚泥の脱水は粉砕された後に完了した後、いくつかのS-列のスクイーズロールによってケーキを驚かせそして剪断することによって完了した、ほとんどの場合は除去することができます。 フィルタベルトが除荷機構を通過すると、泥ケーキはスクレーパによってフィルタベルトから掻き取りされる。上部および下部フィルタベルトを洗浄してから重力脱水領域に戻して次のスラッジ脱水サイクルを完了する。
技術的な利点
フィルタベルト補正装置の動作は柔軟で信頼性がある。フィルタベルトが中心15mmからずれたとき(実際の動作に応じて動作を調整することができる)、フィルタテープ補正装置は自動的に機能し、実際の操作に応じて調整可能な操作においてストレーナが30mm以下である。調子。
脱水装置は洗浄装置を有し、フラッシング装置はスプレーパイプとノズルとからなる。スプレー範囲はフィルタベルトの幅を覆い、各ノズルを交換することができる。フラッシング装置は良好なシーリング性を有し、水と湿った泥ケーキを飛散させることはできません。簡単なメンテナンスや清掃のための逆洗フィルターを装備しています。
フィルタベルトは、高強度、耐食性、良好な透過性、遮断が容易な特性、滑らかな表面および高い固体回収率の特性を有するポリエステルモノフィラメントで作られている。
デーダレーターの空の負荷テストは、6.16のJB / T8102-1999の要件を満たし、負荷テストはJB / T8102-1999の要件を満たしています。
フィルタベルトの速度はスムーズに調整することができます。
技術的なパラメータ
| フィルターベルト幅(mm):1500 | 容量(M3 / HR):15~30 |
| D.乾燥スラッジ(KG / H):240~350 | セクションのフィルタベルト速度(m /分):1.0~6.5 |
| 厚さの断面フィルターベルト速度(m /分):4~21 | ベルト駆動モーター電源(kw):1.1 |
| フィルターベルト増粘モーター電源(KW):0.75 | ミキサータンクブレンドモーターパワー(KW):0.75 |
| モーター保護グレード: IP55 | モーター絶縁体レベル: F |
| 力: 380V、50Hz、3フレーズ | フラッシング圧力(MPa)/品質 (M3 / HR):0.5MPa /≦15m3 / h |
| 重量(kg):4200 | 給水含有量(%): 98~99.5 |
| スラッジケーキ水分含有量(%): 75~85 | スラッジケーキ水分含有量(%): 75~85 |
応用
ブーツ高デューティ型ベルトフィルタースラッジ脱水装置 市政廃水、食品、飲み物、屠殺、繁殖、印刷、石油化学工学、製紙、泉山、医薬品の脱水スラッジに広く使用できます。特に都市下水では広く使われています。
仕様&モデルデータ
製品詳細
オブジェクトサイト