DNYF1.0
BOEEP
DNYF
製品導入
DNYF型完全囲まれた重力ベルトフィルタープレスは、主に増粘プール(A / O残留スラッジなど)に集中しないスラッジを処理するために使用されます。それは2つの機能を持っています:集中と脱水。装置は、複数のプレスロールおよび高圧ロール構造によって、より大きな治療能力およびより低いスラッジケーキ水分含有量の要求を満たすことができる。その間、外側のドア構造はシステムを完全に閉じて保守することが好都合にしています。
作業原理
凝集材料は、布地機構を介して濃重力脱水ゾーンに均一に送られる。このセクションでは、長い水平方向の動きと小さな角度上昇があり、材料はフィルタ帯でフィルタベルトに沿って移動します。重力の作用の下では、フリーの水がフロッツから分離され、材料の大部分は水から除去されます。材料は基本的に流動性から外れてスクレーパを通してフィルタプレス部に掻き取られている。
材料はくさび形の脱水領域に入る。スラリーはさらに浸透面積に平準化されて均等に分布しており、わずかに絞られる。上下のフィルタと下部フィルタによって形成されたくさび空間は小さいほど大きく、最後の2つのバンドは閉じられます。フィルタの中央に挟まれたスラリーの圧力を徐々に上げ、スラリーから水が連続的に排出され、泥が終了した。それらのすべてが流動性を失い、次のステップを押さえ脱水領域に準備します。
絞り脱水領域のプレスロールは、大きいサイズから小さい順に配置され、材料の押圧力は徐々に小さいから小さい。複数の列のプレスロールを押し、移動して切断した後、大部分の細胞内水を除去し、スラッジを脱水する。フィルタがアンロード機構を通過すると、泥ケーキはスクレーパによってフィルタベルトから掻き取りされます。上下のフィルタベルトは、洗浄および再生後、重力脱水領域に戻され、スラッジ脱水サイクルが完了する。
構造
脱水システムでは、泥、投与、混合、反応、層流の下での脱水と泥ケーキの出力が実装されています。
脱水装置の設計および製造は、脱水室における高温および100%の湿度の過酷な作業環境に適しているので、装置の安定した信頼性の高い動作を確実にするために。
脱水装置は滑らかにそして通常は衝撃、振動および異常な音を鳴らない。すべての部品は組み立て前にテストされ修飾されています。

技術パラメータ
| フィルターベルト幅(mm): 1000 | 容量(M3 / HR): 12.5~15 |
| D.乾燥スラッジ(kg / h):90~240 | セクションのフィルタベルト速度(m /分): 1.0~5.0 |
| セクションフィルターベルト速度(m /分): 3.5~17.5 | ベルト駆動モーター電源(KW): 1.1 |
| フィルターベルト増粘モーター電源(KW):0.75 | ミキサータンクブレンドモーターパワー(KW):0.75 |
| モーター保護グレード: IP55 | モーター絶縁体レベル: F |
| 力: 380V、50Hz、3フレーズ | フラッシング圧力(MPA)と品質 (m3 / hr): 0.5MPa / 6~8 |
| 重量(kg): 3500 | 給水含有量(%): 98~99.5 |
| スラッジケーキ水分含有量(%): 75~85 | 運転モードの速度制御モード: 周波数制御 |
技術的な特徴
1 - フィルタベルトの速度をスムーズに調整することができます
2 - 消湿器の空の負荷テストは、6.16の要件を満たしており、負荷テストはJB / T8102-1999 6.17の要件を満たしています。
フィルタベルトは、高強度、耐食性、良好な透過性、遮断が容易な特性、滑らかな表面および高い固体回収率の特性を有するポリエステルモノフィラメントで作られている。
4 - フィルタベルト補正装置の動作は柔軟で信頼性が高い。フィルタベルトが中心15mmからずれたとき(実際の動作に応じて動作を調整することができる)、フィルタテープ補正装置は自動的に機能し、実際の操作に応じて調整可能な操作においてストレーナが30mm以下である。調子。
5 - 脱水装置は洗浄システムを有し、フラッシング装置はスプレーパイプとノズルとからなる。スプレー範囲はフィルタベルトの幅を覆い、各ノズルを交換することができる。フラッシング装置は良好なシーリング性を有し、水と湿った泥ケーキを飛散させることはできません。簡単なメンテナンスや清掃のための逆洗フィルターを装備しています。
応用
ブーツ完全に囲まれたヘビーデューティベルトフィルタープレス機は、市政廃水、食品、飲料、屠殺、繁殖、印刷、石油化学工学、製紙、山科用、医薬品の脱水汚泥に広く使用できます。特に都市下水では広く使われています。
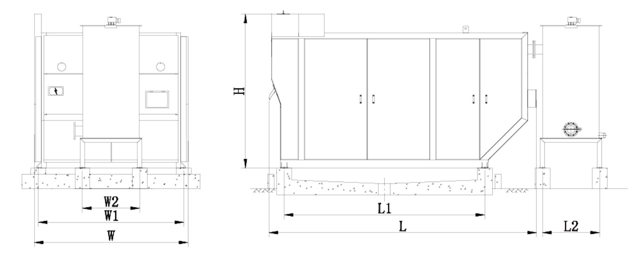
高デューティベルトフィルタープレス仕様書とモデルデータ
製品詳細
ワークショップ
オブジェクトサイト
製品導入
DNYF型完全囲まれた重力ベルトフィルタープレスは、主に増粘プール(A / O残留スラッジなど)に集中しないスラッジを処理するために使用されます。それは2つの機能を持っています:集中と脱水。装置は、複数のプレスロールおよび高圧ロール構造によって、より大きな治療能力およびより低いスラッジケーキ水分含有量の要求を満たすことができる。その間、外側のドア構造はシステムを完全に閉じて保守することが好都合にしています。
作業原理
凝集材料は、布地機構を介して濃重力脱水ゾーンに均一に送られる。このセクションでは、長い水平方向の動きと小さな角度上昇があり、材料はフィルタ帯でフィルタベルトに沿って移動します。重力の作用の下では、フリーの水がフロッツから分離され、材料の大部分は水から除去されます。材料は基本的に流動性から外れてスクレーパを通してフィルタプレス部に掻き取られている。
材料はくさび形の脱水領域に入る。スラリーはさらに浸透面積に平準化されて均等に分布しており、わずかに絞られる。上下のフィルタと下部フィルタによって形成されたくさび空間は小さいほど大きく、最後の2つのバンドは閉じられます。フィルタの中央に挟まれたスラリーの圧力を徐々に上げ、スラリーから水が連続的に排出され、泥が終了した。それらのすべてが流動性を失い、次のステップを押さえ脱水領域に準備します。
絞り脱水領域のプレスロールは、大きいサイズから小さい順に配置され、材料の押圧力は徐々に小さいから小さい。複数の列のプレスロールを押し、移動して切断した後、大部分の細胞内水を除去し、スラッジを脱水する。フィルタがアンロード機構を通過すると、泥ケーキはスクレーパによってフィルタベルトから掻き取りされます。上下のフィルタベルトは、洗浄および再生後、重力脱水領域に戻され、スラッジ脱水サイクルが完了する。
構造
脱水システムでは、泥、投与、混合、反応、層流の下での脱水と泥ケーキの出力が実装されています。
脱水装置の設計および製造は、脱水室における高温および100%の湿度の過酷な作業環境に適しているので、装置の安定した信頼性の高い動作を確実にするために。
脱水装置は滑らかにそして通常は衝撃、振動および異常な音を鳴らない。すべての部品は組み立て前にテストされ修飾されています。

技術パラメータ
| フィルターベルト幅(mm): 1000 | 容量(M3 / HR): 12.5~15 |
| D.乾燥スラッジ(kg / h):90~240 | セクションのフィルタベルト速度(m /分): 1.0~5.0 |
| セクションフィルターベルト速度(m /分): 3.5~17.5 | ベルト駆動モーター電源(KW): 1.1 |
| フィルターベルト増粘モーター電源(KW):0.75 | ミキサータンクブレンドモーターパワー(KW):0.75 |
| モーター保護グレード: IP55 | モーター絶縁体レベル: F |
| 力: 380V、50Hz、3フレーズ | フラッシング圧力(MPA)と品質 (m3 / hr): 0.5MPa / 6~8 |
| 重量(kg): 3500 | 給水含有量(%): 98~99.5 |
| スラッジケーキ水分含有量(%): 75~85 | 運転モードの速度制御モード: 周波数制御 |
技術的な特徴
1 - フィルタベルトの速度をスムーズに調整することができます
2 - 消湿器の空の負荷テストは、6.16の要件を満たしており、負荷テストはJB / T8102-1999 6.17の要件を満たしています。
フィルタベルトは、高強度、耐食性、良好な透過性、遮断が容易な特性、滑らかな表面および高い固体回収率の特性を有するポリエステルモノフィラメントで作られている。
4 - フィルタベルト補正装置の動作は柔軟で信頼性が高い。フィルタベルトが中心15mmからずれたとき(実際の動作に応じて動作を調整することができる)、フィルタテープ補正装置は自動的に機能し、実際の操作に応じて調整可能な操作においてストレーナが30mm以下である。調子。
5 - 脱水装置は洗浄システムを有し、フラッシング装置はスプレーパイプとノズルとからなる。スプレー範囲はフィルタベルトの幅を覆い、各ノズルを交換することができる。フラッシング装置は良好なシーリング性を有し、水と湿った泥ケーキを飛散させることはできません。簡単なメンテナンスや清掃のための逆洗フィルターを装備しています。
応用
ブーツ完全に囲まれたヘビーデューティベルトフィルタープレス機は、市政廃水、食品、飲料、屠殺、繁殖、印刷、石油化学工学、製紙、山科用、医薬品の脱水汚泥に広く使用できます。特に都市下水では広く使われています。
高デューティベルトフィルタープレス仕様書とモデルデータ
製品詳細
ワークショップ
オブジェクトサイト