XBS300
BOEEP
XBS
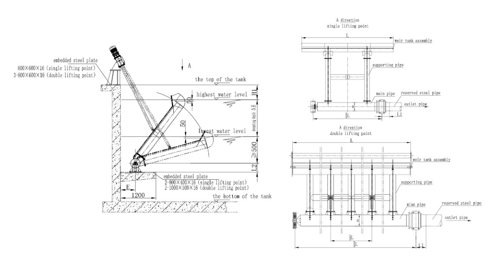
![]() 製品説明 XBSロータリーデカンターは、シークエンシングバッチ反応器活性化スラッジプロセス(SBR)の重要な装置である。それはまた国内で最も広く使われています。この種の水デカンターは着実に作用し、容易な制御、漏れなし、スムーズに流れ、スラッジを乱すことができます。バッチ反応器を使用するSBRプロセスは、二次沈降およびスラッジリターン装置を必要としないので、インフラストラクチャに多くの投資を節約することができ、それは私達の国で広く促進されてきた。水の充填、反応、落ち着く、描画、アイドルファイブ基本プロセスで構成されたその基本的な操作手順。それは廃水からの完全なサイクルです。 XBS回転デカンタは、処理された水を定量的にそして定期的に排出する機能を達成する。これは、最終的な目的であるSBRプール内の水を連続的に処理することを可能にする。 |
作業原理
XBS回転デカンタは、主に排水段階でのデカントに使用され、一般に上部プールの最高水位で停止します。デカント堰は伝送メカニズムによって駆動され、次にデカントを開始するためにゆっくりと降下させる。水はデカント堰を通り抜け、パイプ、メインパイプを支持し、そして継続的に流れ出る。堰が下がって事前設定された深さに到着すると、伝送メカニズムは逆転し始め、それはデカンタがすぐに最高の水位に戻り、次に次の順序を待つ。
応用
都市下水や工業排水処理など、CAS、キャスト、アイス、DAT IATメソッドプロセスのSBRプロセスに適しています。それは製紙、アルコール、染料、農薬、革、ビスコース、グルタミン酸塩、砂糖、その他の産業における産業廃水(廃液)の治療に広く使用されています。
特徴
1デカンシングデカンタの深さはプロセス要件に従って設計できます。
2 - PLCプログラム制御を使用してインテリジェントドライブを実現します。デカンタは、排水指導を受けた後、駐車位置から水面へデカンティング口を急速に動かし、上澄みの静止を排出し、水を前後に排出する。 ロータリーデカンタが最低水位に達すると、最低水位に配置されているレベルスイッチは戻り命令を送り、デカンタは素早い駐車位置に急上昇し、作業サイクルを完了します。
3 - 堰で指定された負荷範囲内で、堰の下の液面は邪魔されません。堰の口には、流出物の品質を確保するためにブイとスラグ停止プレートが装備されています。
4-特別な設計はデカンタの重力と浮力のバランスを確実にしているので、デカンタの消費電力は非常に低い。
5 - デカンタとメイン排水管との間の剛性の接続はステンレス鋼であり、ソフトコネクションによる高故障率、短寿命、高メンテナンス強度の欠点を回避します。
6 - デカンタ全体には強力なサポートがあり、作業中のさまざまなストレスに耐えることができます。
仕様&モデルデータ
![]() 製品説明 XBSロータリーデカンターは、シークエンシングバッチ反応器活性化スラッジプロセス(SBR)の重要な装置である。それはまた国内で最も広く使われています。この種の水デカンターは着実に作用し、容易な制御、漏れなし、スムーズに流れ、スラッジを乱すことができます。バッチ反応器を使用するSBRプロセスは、二次沈降およびスラッジリターン装置を必要としないので、インフラストラクチャに多くの投資を節約することができ、それは私達の国で広く促進されてきた。水の充填、反応、落ち着く、描画、アイドルファイブ基本プロセスで構成されたその基本的な操作手順。それは廃水からの完全なサイクルです。 XBS回転デカンタは、処理された水を定量的にそして定期的に排出する機能を達成する。これは、最終的な目的であるSBRプール内の水を連続的に処理することを可能にする。 |
作業原理
XBS回転デカンタは、主に排水段階でのデカントに使用され、一般に上部プールの最高水位で停止します。デカント堰は伝送メカニズムによって駆動され、次にデカントを開始するためにゆっくりと降下させる。水はデカント堰を通り抜け、パイプ、メインパイプを支持し、そして継続的に流れ出る。堰が下がって事前設定された深さに到着すると、伝送メカニズムは逆転し始め、それはデカンタがすぐに最高の水位に戻り、次に次の順序を待つ。
応用
都市下水や工業排水処理など、CAS、キャスト、アイス、DAT IATメソッドプロセスのSBRプロセスに適しています。それは製紙、アルコール、染料、農薬、革、ビスコース、グルタミン酸塩、砂糖、その他の産業における産業廃水(廃液)の治療に広く使用されています。
特徴
1デカンシングデカンタの深さはプロセス要件に従って設計できます。
2 - PLCプログラム制御を使用してインテリジェントドライブを実現します。デカンタは、排水指導を受けた後、駐車位置から水面へデカンティング口を急速に動かし、上澄みの静止を排出し、水を前後に排出する。 ロータリーデカンタが最低水位に達すると、最低水位に配置されているレベルスイッチは戻り命令を送り、デカンタは素早い駐車位置に急上昇し、作業サイクルを完了します。
3 - 堰で指定された負荷範囲内で、堰の下の液面は邪魔されません。堰の口には、流出物の品質を確保するためにブイとスラグ停止プレートが装備されています。
4-特別な設計はデカンタの重力と浮力のバランスを確実にしているので、デカンタの消費電力は非常に低い。
5 - デカンタとメイン排水管との間の剛性の接続はステンレス鋼であり、ソフトコネクションによる高故障率、短寿命、高メンテナンス強度の欠点を回避します。
6 - デカンタ全体には強力なサポートがあり、作業中のさまざまなストレスに耐えることができます。
仕様&モデルデータ